Atelier relais intercommunal à Erbray

  • Maitrise d’ouvrage

    Publique

  • Localisation

    Erbray (44)

  • Maitrise d’œuvre

    SARL Philippe Misériaux, architecte
    Ad diem, économiste de la construction

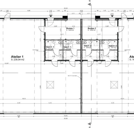
  • Programme

    Atelier relais intercommunal de deux modules:
    1 de 317 m2
    1 de 238 m2

  • Description

    Ossature acier + double peau. Bardage
    bac acier, polycarbonate & bois Douglas.
    Couverture étanchéité

  • Surfaces

    555 m2

  • Coût travaux

    Sur demande
    Ouvrage réceptionné 2016

Retour