Extension de bureaux à Erbray (44)

  • Maitrise d’ouvrage

    Privée (SCR INFORMATIQUES)

  • Localisation

    Erbray (44)

  • Maitrise d’œuvre

    SARL Philippe Misériaux, architecte
    Atlantique Loire Structure, BET Structure

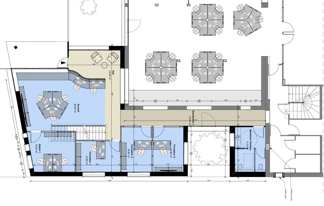
  • Programme

    Site en zone artisanale.
    Restructuration - extension d’un bâtiment tertiaire.
    Création de bureaux - Accueil - salles de réunion
    Bardages sur existants, climatisation globale.

  • Description

    Ossature béton + charpente bois.
    Couverture étanchéité plane.
    Climatisation sur Pompe à chaleur.
    Menuiseries aluminium.

  • Surfaces

    Extension 267 m2

  • Coût travaux

    461 115,23 € HT


Crédits photos :
Hadrien BRUNNER
Photographe
Entreprises & Particuliers
Tél. : +33 (0)6 85 43 27 80
hadrienbrunner.com

Retour