Maison individuelle à Basse-Goulaine

  • Maitrise d’ouvrage

    Privée

  • Localisation

    Basse-Goulaine (44)

  • Maitrise d’œuvre

    SARL Philippe Misériaux, architecte

  • Mission

    Complète

  • Programme

    Site Urbain, en lotissement.
    Petite parcelle de 328 m2 issue de la découpe d’un terrain existant.
    Logement individuel de 4 chambres.

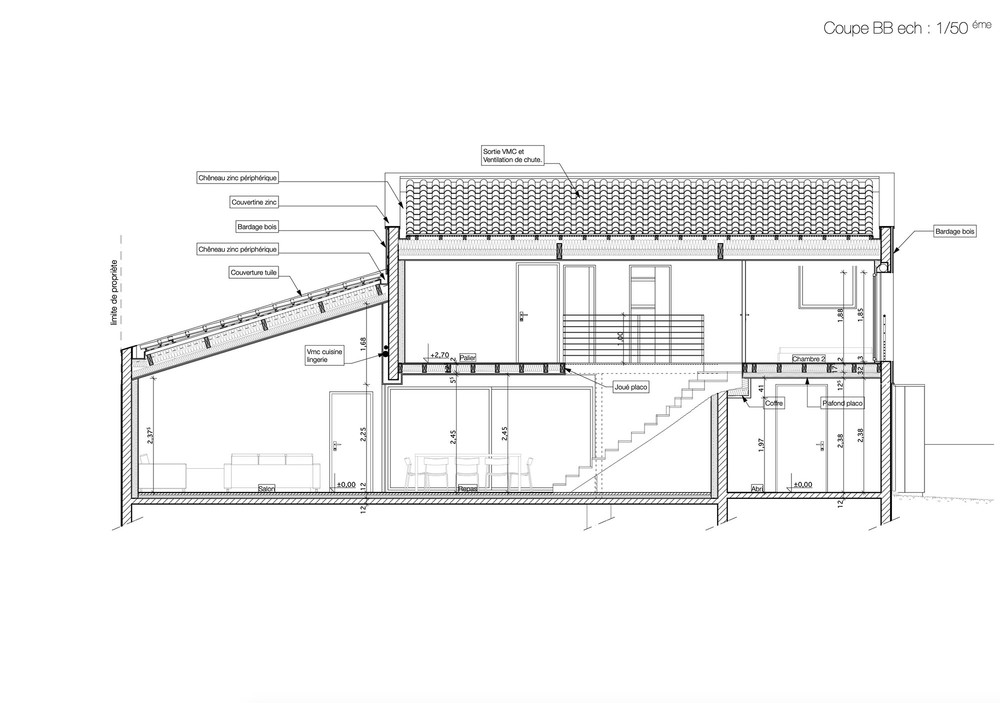
  • Description

    Ossature brique. Bardage bois Douglas &
    Enduit taloché fin.
    Couverture briques.
    Chauffage au sol PAC aérothermie.
    Menuiseries aluminium.

  • Surfaces

    Surfaces habitables : 140 m2
    Surface garage : 27 m2
    Surface patio : 14 m2

  • Coût travaux

    Sur demande
    Réceptionné en avril 2013

Retour