Maison individuelle à Châteaubriant

  • Maitrise d’ouvrage

    Privée

  • Localisation

    Châteaubriant (44)

  • Maitrise d’œuvre

    SARL Philippe Misériaux, architecte

  • Mission

    Complète

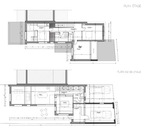
  • Programme

    Site urbain terrain de 310 m2.
    Parcelle en légère pente vers l’ouest.
    Logement individuel de 3 chambres.

  • Description

    Ossature bois/acier. Plancher Béton.
    Bardage bois Douglas.
    Couverture bac acier.
    Chauffage poêle à granulés.
    Menuiseries aluminium.

  • Surfaces

    Surfaces habitables : 144 m2
    Surface garage : 26 m2

  • Coût travaux

    Sur demande
    Réception juillet 2015.

Retour